Wohnungsumbau Berlin Mitte

O22

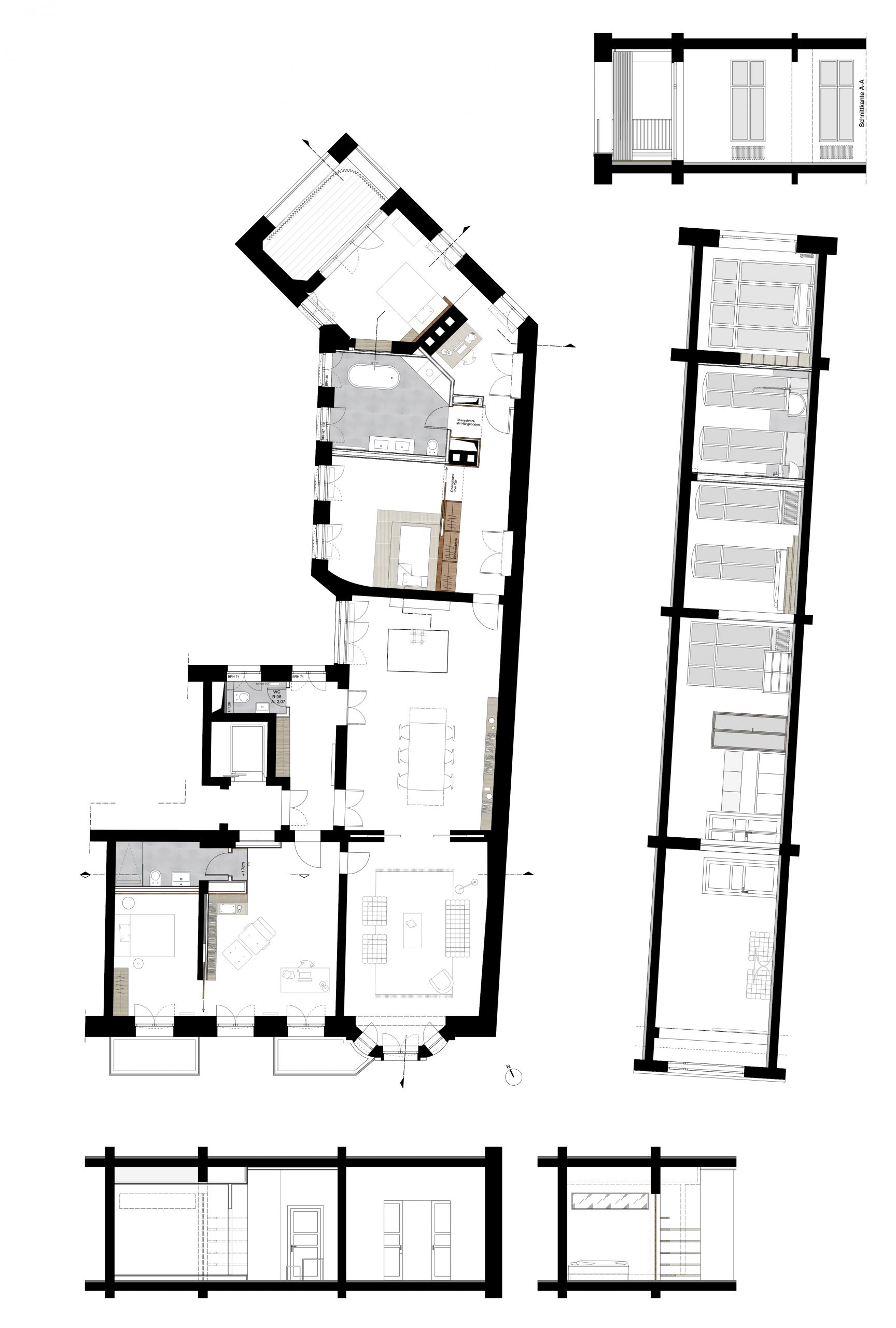
Umbau einer denkmalgeschützten Altbauwohnung in Berlin Mitte, 2020

Zwei bestehende Wohnungen im 1. Obergeschoss eines Altbaues wurden zu einer großzügig geschnitten Wohnung zusammengefügt. Es sind 2 getrennte Wohnbereiche mit jeweils Schlafraum, Arbeitsraum und eigenem Badezimmer entstanden. Das in der Mitte gelegene Berliner Zimmer wurde zum Treffpunkt mit Küche in der Mitte der Wohnung umfunktioniert. Die Altbautüren wurden durch handgefertige Stahl/Glastüren ersetzt für welche ein Griff nach dem Vorbild von Ludwig Wittgenstein entworfen wurde. Zahlreiche Innenausbauten wie Schränke als Raumteiler und Einbaumöbel ergänzen den Charakter.


Bauherr: Privat
Leistungsphasen: 1-8 HOAI
Wohnfläche 190,00 m2

Categories

Diese Seite verwendet Cookies, um die Nutzerfreundlichkeit zu verbessern. Mit der weiteren Verwendung stimmst du dem zu.

Datenschutzerklärung