Villa Schade

Errichtung eines Einfamilienhauses in Kassel-Brasselsberg
Kassel, 2017

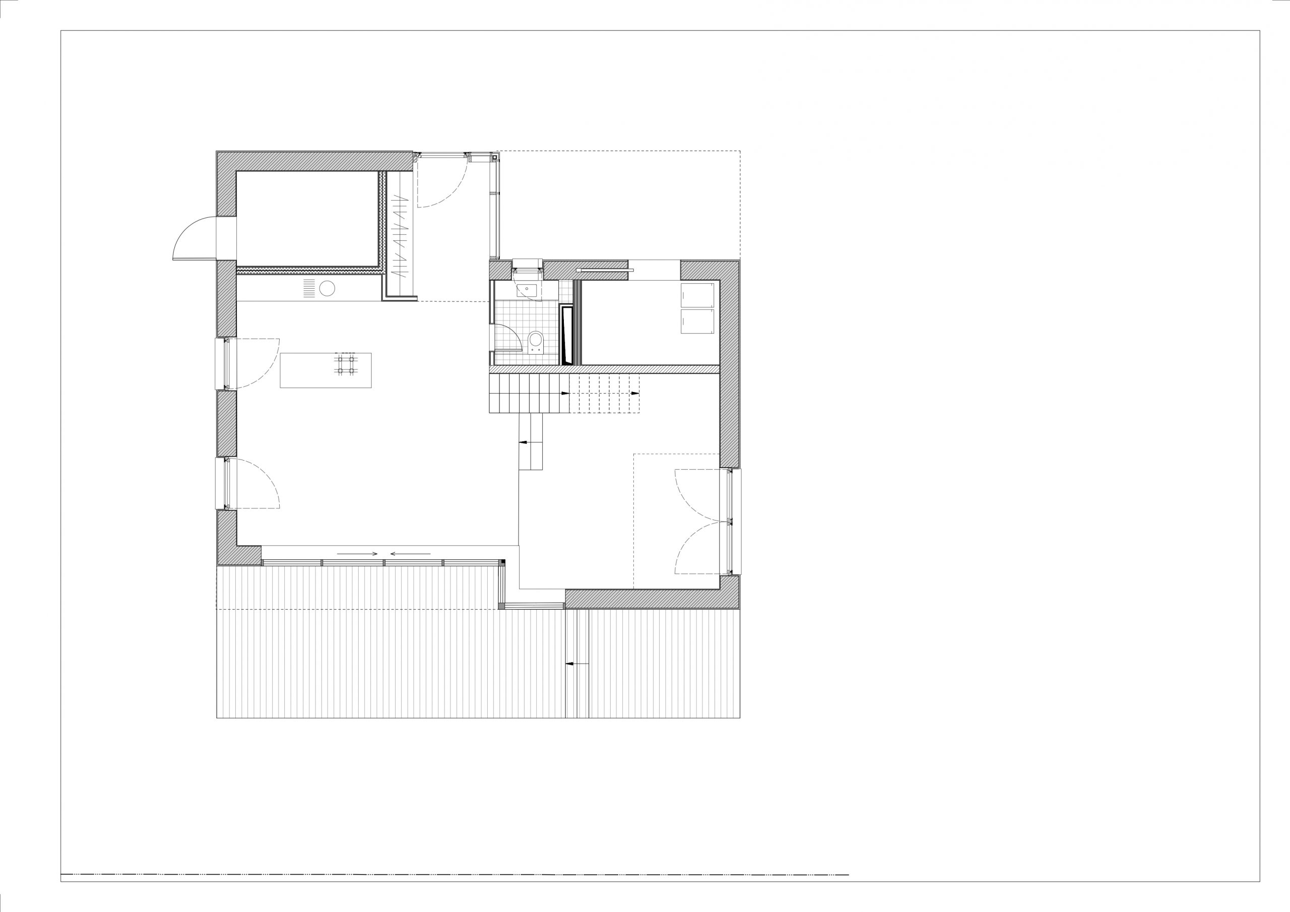
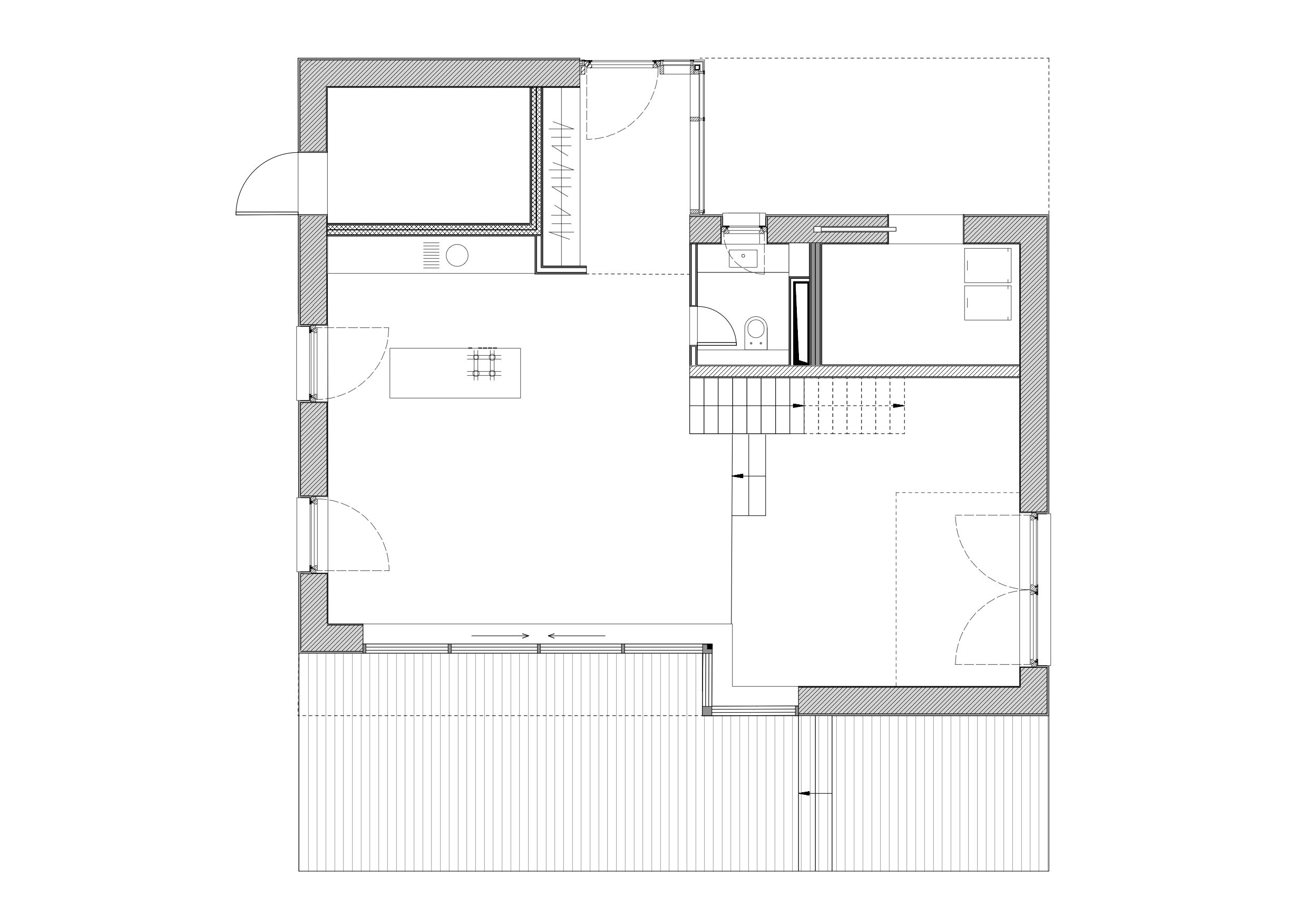
Das Grundstück liegt im Stadtteil Brasselsberg in der Nähe des Habichtswaldes und des Parks Wilhelmshöhe. Die Villa hat eine klare kubische Form, die von den Einschnitten an der Terrasse und am Eingang im Erdgeschoss und den großzügigen Fensterbändern im 1. Obergeschoß charakterisiert wird.

Bauherr: Privat
Leistungsphasen: 1-7 HOAI
EnEV Standard KfW 55
Wohnfläche 173,00 m2

Categories

Diese Seite verwendet Cookies, um die Nutzerfreundlichkeit zu verbessern. Mit der weiteren Verwendung stimmst du dem zu.

Datenschutzerklärung