Wohnen am Gutspark


Errichtung einer ökologischen Holzhaussiedlung mit 34 Wohneinheiten
in der Gemeinde Mühlenbeck, Ortsteil 16567 Schönfließ, ab 2019

Durch die Gemeindevertretung Mühlenbecker Land wurde im Jahr 2015 der Aufstellungsbeschluss für einen Bebauungsplan mit der Bezeichnung „Gutspark und Wohnen“ gefasst.

2019 entstand die Idee der Planer auf dem 11.400 m2 großen Grundstück einen Wohnstandort zu entwickeln der sich gut in die dörfliche und naturnahe Umgebung einpasst, sowohl in städtebaulicher als auch in architektonischer Hinsicht.
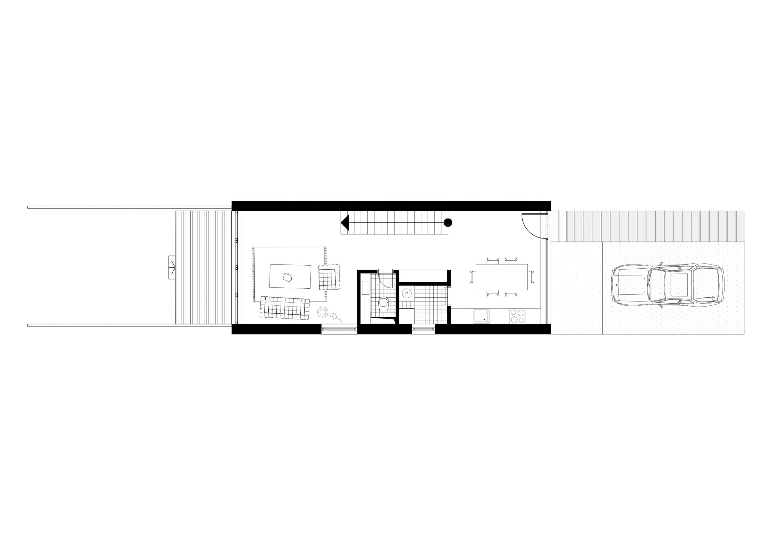
Es soll eine Mischung aus Einzel,- und Doppelhäusern sowie einem platzprägenden und raumbildenden Block aus 9 Stück dreigeschossigen Reihenhäusern entstehen.

Der neu zu errichtende Dorfplatz formt und strukturiert den Ortskern von Schönfließ neu und fasst die umliegenden Gebäude ein.
Durch eine entsprechende Gestaltung die eine Aufenthaltsqualität sichert soll der Dorfkern einen neuen „Mittelpunkt“ erhalten der die Attraktivität des Ortes und der Umgebung aufwertet.
Die neuen und alten Bewohner von Schönfließ sollen hier einen Treffpunkt erhalten.

Im August 2021 waren alle Einheiten vergeben und die GbR konnte das Grundstück käuflich erwerben.

Projektentwicklung
Leistungsphasen: 1-5 HOAI

Bauherr: Wohnen am Gutshof GbR
EnEV Standard KfW 55 plus
Wohnfläche 4.321 m2

Diese Seite verwendet Cookies, um die Nutzerfreundlichkeit zu verbessern. Mit der weiteren Verwendung stimmst du dem zu.

Datenschutzerklärung