Blücher24

Blücher Str. 24 – Baugruppenprojekt, Berlin, 2015

Berlin, 2010-2015
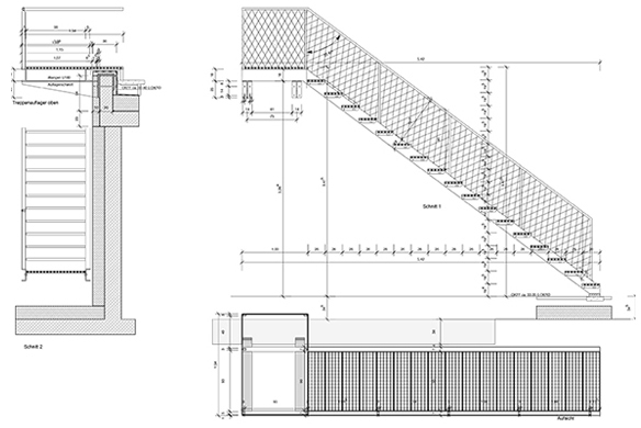
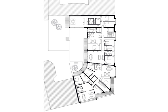
Errichtung eines Mehrfamilienhauses mit 27 Wohneinheiten, 1 Gewerbeeinheit und Tiefgarage.
Adresse: Blücher Straße 24/25 Ecke Schleiermacherstraße 1 in 10961 Berlin Kreuzberg
Bauherr: Baugherrengemeinschaft Blücher24 GbR
Projektentwicklung
Leistungsphasen: 1-8 HOAI

Categories

Diese Seite verwendet Cookies, um die Nutzerfreundlichkeit zu verbessern. Mit der weiteren Verwendung stimmst du dem zu.

Datenschutzerklärung